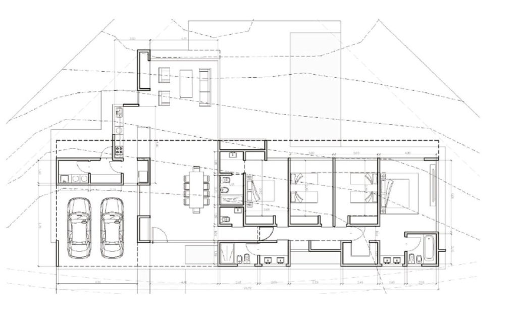
Residencial Cliente Privado. Buenos Aires. 155m2

Buenos Aires, 2016.

Inversión: 174 k €.

Sup. Construida: 155 m2.

Áreas de intervención:

Anteproyecto

Proyecto Básico

Proyecto de Ejecución

*En colaboración con Suarez+Asociados.

Otros proyectos