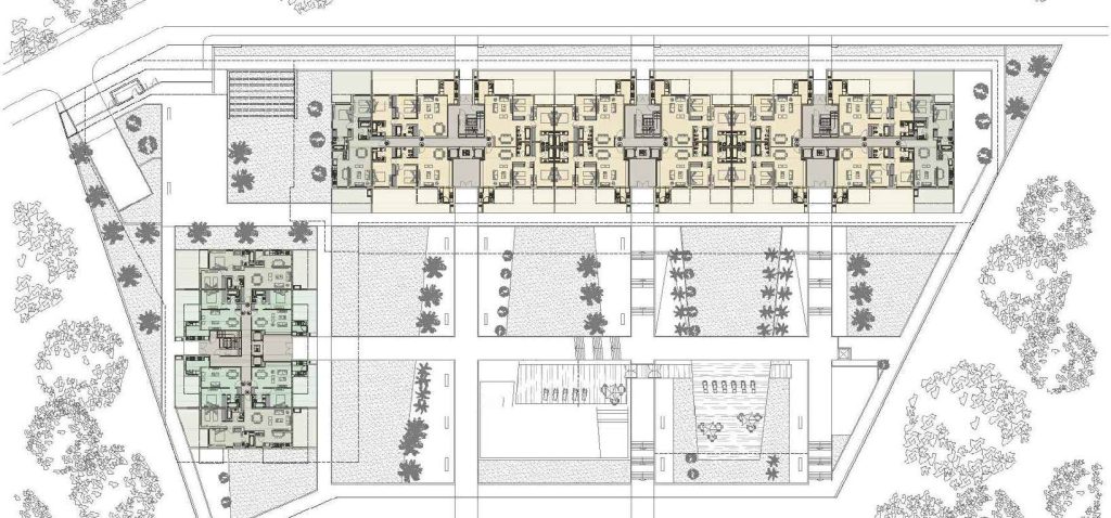
Residencial Hudson Park

Buenos Aires, 2018.

Inversión: 10 m €.

Sup. Construida: 15.282 m2.

Áreas de intervención:

Anteproyecto

Proyecto Básico

Proyecto de Ejecución

Instalaciones

Estructuras

Dirección de Obra

Dirección de Ejecución de Obra

Mediciones

Licitación/Concurso con Proveedores

Gestión de Licencia

Project Management

*En colaboración con Suarez+Asociados.

Otros proyectos